Woonoppervlakte
Circa 146 m²
Perceeloppervlakte
Circa 109 m²
Bouwjaar
Gebouwd in 1906
Aantal kamers
7 kamers (5 slaapkamers)

Lijsterweg 38

1221 JL, Hilversum (Noord-Holland)

Sfeervol wonen in deze charmante woning met verrassend souterrain en zonnige tuin.

Welkom aan de Lijsterweg 38 in Hilversum!

Deze charmante en karaktervolle tussenwoning is uitstekend onderhouden en biedt volop comfort, sfeer en ruimte. Een bijzondere troef bevindt zich onder het huis: een uniek souterrain met verrassend veel ruimte en mogelijkheden. Hier zijn momenteel twee afzonderlijke ruimtes gerealiseerd: een rustige, afgesloten werkkamer én een ruime chillroom, ideaal voor werk, ontspanning of hobby. Daarnaast is er nog een royale bergruimte die nu dienst doet als privé-wijnkelder.

Een warm welkom binnen
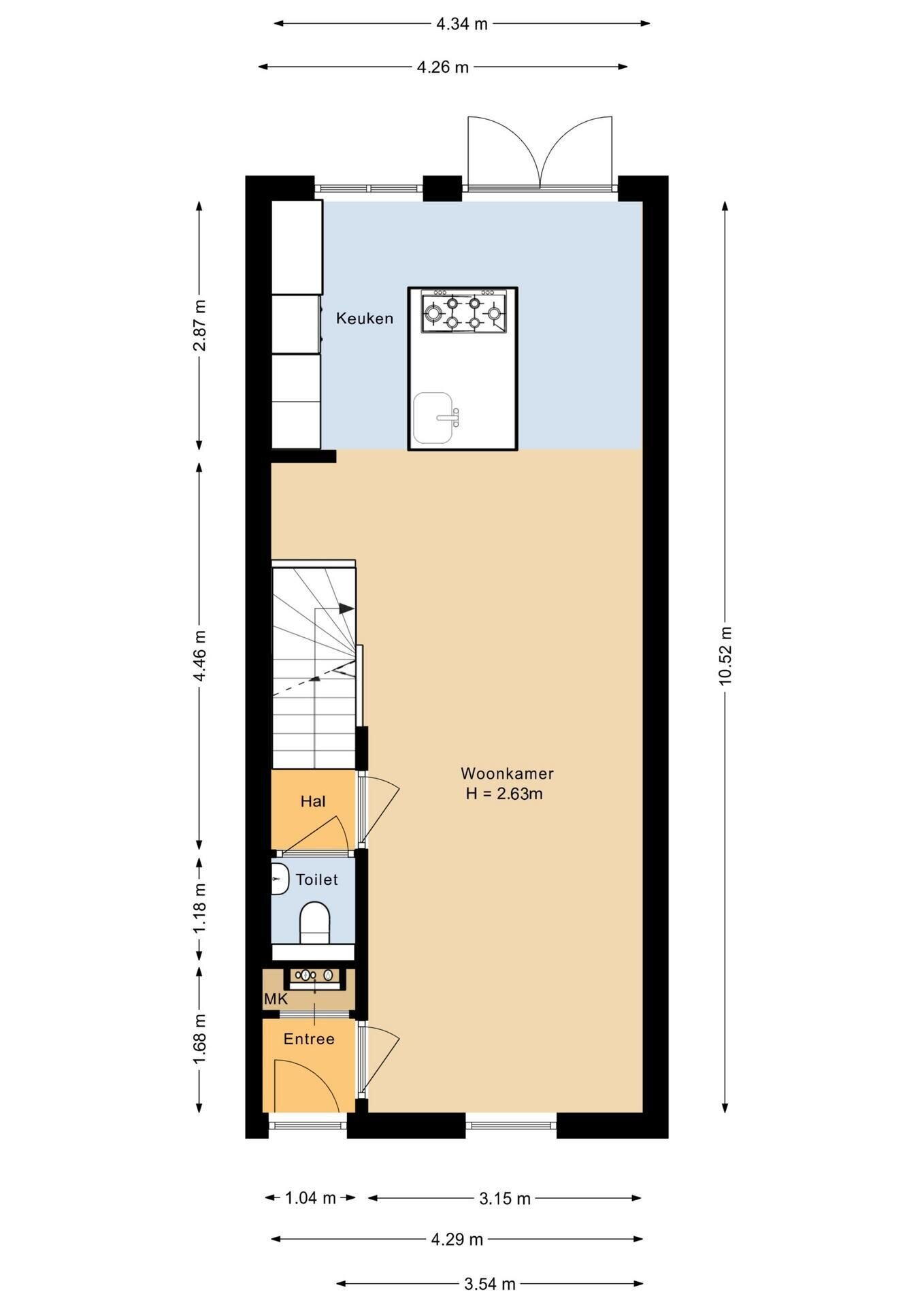
Via de hal betreed je de lichte woonkamer met mooie laminaatvloer en bovenlichten in zeer stijlvolle glas-in-loodramen die direct al sfeer geven. De moderne open keuken met kookeiland is van alle gemakken voorzien. Dankzij de openslaande deuren aan de achterzijde stap je zo de zonnige tuin in, waardoor binnen en buiten naadloos in elkaar overlopen. In een tussenhal bevindt zich in Italiaanse sfeer betegelde moderne toilet.

Ruimte en comfort op de verdiepingen
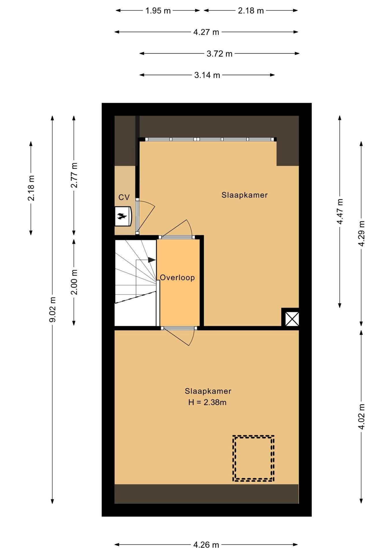
Op de eerste verdieping vind je twee slaapkamers, waaronder een royale master bedroom met ingebouwde kastenwand. De luxe badkamer is voorzien van een dubbele douche, een ligbad en een dubbel stenen wastafelmeubel. Een tweede toilet bevindt zich separaat op de overloop in een ruim bemeten ruimte die ook nog dienst doet als een praktische wasruimte.

De tweede verdieping biedt nog eens twee ruim bemeten slaapkamers en een aparte technische ruimte met de cv-installatie.

Uniek souterrain
Een bijzonder pluspunt van deze woning is het verrassend ruime souterrain. Het souterrain is opgedeeld in twee aparte ruimtes: een gezellige (slaap)kamer, ideaal als tv-kamer of chillroom, én een ruime en lichte kantoorruimte aan de achterzijde, perfect voor thuiswerken of studeren.

Zonnige achtertuin op het zuiden
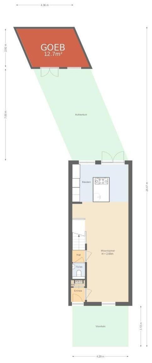
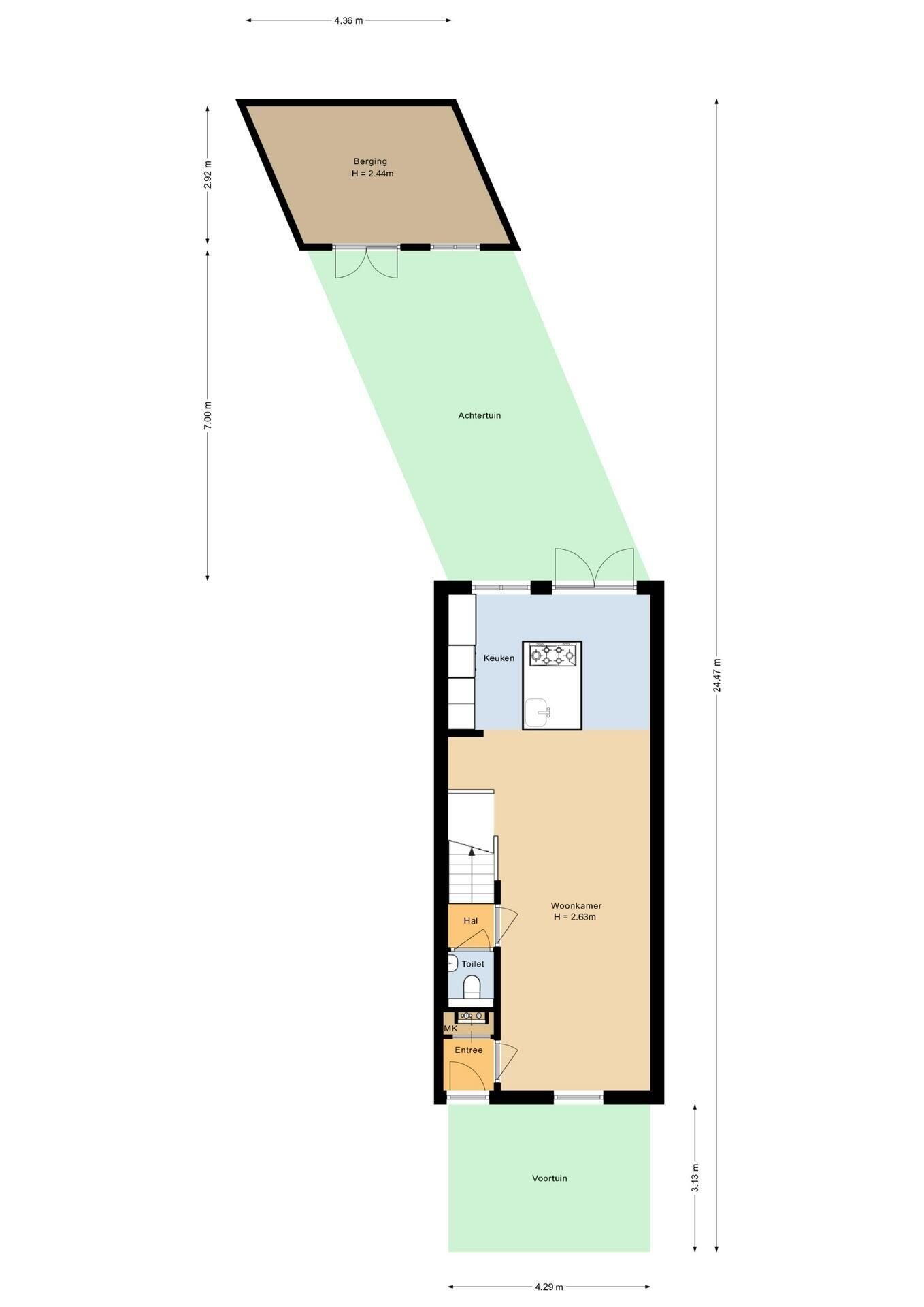
De onderhoudsvriendelijke achtertuin is gelegen op het zuiden en biedt de hele dag zon. De tuin is volledig betegeld en beschikt over een vrijstaande stenen berging met openslaande deuren, handig voor fietsen en extra opslag.

Ideale ligging met alles binnen handbereik
De woning ligt in een geliefde, kindvriendelijke wijk met een rustige en gemoedelijke sfeer. Je woont hier op loopafstand van het gezellige centrum van Hilversum en het NS-station, wat deze locatie ideaal maakt voor forenzen. Diverse (basis)scholen, kinderopvang en winkels zijn makkelijk bereikbaar te voet of met de fiets. Ook de uitvalswegen naar de A1 en A27 zijn nabij, zodat je vlot richting Amsterdam, Utrecht of Amersfoort reist. Een perfecte combinatie van rust, bereikbaarheid en wooncomfort.

Bijzonderheden
• Tussenwoning met totaal zeven kamers
• Ruim bemeten multifunctioneel souterrain
• Moderne open keuken met kookeiland
• Karakteristieke glas-in-loodramen aan de voorzijde.
• Heerlijke openslaande deuren naar de tuin
• Luxe badkamer met dubbele douche en ligbad
• Zonnige tuin op het zuiden
• Zeer ruime stenen tuinhuis/berging met vliering
• Ruime en lichte kantoorruimte in souterrain
• Gelegen in kindvriendelijke buurt nabij centrum en station

De opgegeven meetgegevens sluiten mogelijke verschillen in uitkomsten niet volledig uit, onder andere door interpretatieverschillen, afrondingen of beperkingen bij het uitvoeren van de meting. Verkoper of diens vertegenwoordiger aanvaardt geen aansprakelijkheid voor eventuele afwijkingen.

EEN UNIEKE KANS OM SFEERVOL, RUIM EN CENTRAAL TE WONEN IN HILVERSUM!

Benieuwd geworden? Maak dan snel een afspraak voor een bezichtiging en ontdek zelf wat deze fijne woning te bieden heeft. Voor meer informatie kijk op lijsterweg38.nl. Zien wij jou binnenkort?

Plattegronden

Overdracht

Vraagprijs
€ 650.000 k.k.
Status
Verkocht

Bouw

Object type
Eengezinswoning, tussenwoning
Soort bouw
Bestaande bouw
Bouwjaar
1906

Oppervlakte en inhoud

Woonoppervlakte
146 m²
Perceeloppervlakte
109 m²
Inhoud
479 m³
Externe bergruimte
13 m²

Indeling

Aantal kamers
7 kamers (5 slaapkamers)
Aantal badkamers
1 badkamer en 2 aparte toiletten
Badkamervoorzieningen
Douche, dubbele wastafel, en ligbad
Aantal woonlagen
4 woonlagen en een kelder

Energie

Energielabel
B
Verwarming
Elektrische verwarming en gehele vloerverwarming
Warm water
Cv-ketel

Buitenruimte

Ligging
Aan rustige weg en in woonwijk
Tuin
Achtertuin
Afmetingen achtertuin
30 m² (7,00 meter diep en 4,35 meter breed)
ligging tuin
Gelegen op het zuiden bereikbaar via achterom

Bergruimte

Schuur / berging
Vrijstaande stenen berging

Parkeergelegenheid

Soort parkeergelegenheid
Betaald parkeren en parkeervergunningen

Energieverbruik in Hilversum

Energielabel deze woning

Energielabel B

Publicatie energielabel:

Stroomverbruik per jaar

2750 kWh

(Gemiddelde tussenwoning in Hilversum)

Gasverbruik per jaar

1230 m³

(Gemiddelde tussenwoning in Hilversum)

* Cijfers zijn afkomstig van het CBS en bedoeld als indicatie en kunnen verschillen voor deze woning

Indicatie hypotheeklasten

Eigen inleg:
Spaargeld / overwaarde

Rente:
Laagste 10-jaars rente

Laagste 10-jaars rente

2,75% - Centraal Beheer Groen... - NHG


3,04% - Argenta Groen Hypothee... - 80%

Laagste 20-jaars rente

3,18% - Argenta Groen Hypothee... - NHG


3,39% - Argenta Groen Hypothee... - 80%

Laagste 30-jaars rente

3,35% - Argenta Groen Hypothee... - NHG


3,56% - Argenta Groen Hypothee... - 80%


Hypotheek:

Bruto maandlasten: € 0 p/m

Netto maandlasten: € 0 p/m

Hoe berekenen we dit?

Het rentepercentage is gebaseerd op de laagste 10 jaars vaste rente voor één hypotheekdeel. De vermelde rente (3.04% zonder NHG) is gecontroleerd op 28-10-2025. Deze berekening is gebaseerd op een annuïteitenhypotheek die volledig wordt afgelost, waarbij de maandlasten gedurende de gehele looptijd gelijk blijven. De werkelijke rente en netto maandlasten kunnen variëren, afhankelijk van uw persoonlijke situatie en de hypotheekverstrekker. Raadpleeg een financieel adviseur voor een nauwkeurige berekening en advies. Aan deze berekening kunnen geen rechten worden ontleend; het dient enkel als indicatie.

Documentatie

Kadastrale kaart

Leefomgeving

Energielabel-b

WOZ waarderapport

BAG uittreksel

Plattegronden PDF

Kadastrale-kaart-hilversum-r-1603

Lijst-van-zaken-samengevoegd

Vragenlijst-b

Bezoek onze website

Zonnegrenzen bekijken

Op de kaart

Inwoners in Hilversum

Cijfers voor postcodegebied 1221

Totaal aantal inwoners
9180 inwoners
Mannen
51%
Vrouwen
49%

Inwoners in Hilversum

Cijfers voor postcodegebied 1221

tot 15 jaar
18%
15 tot 25 jaar
10%
25 tot 35 jaar
36%
45 tot 65 jaar
25%
65 en ouder
11%

Huishoudens in Hilversum

Cijfers voor postcodegebied 1221

Eenpersoons zonder kinderen
46%
Meerpersoons zonder kinderen
23%
Huishoudens zonder kinderen
69%

Huishoudens in Hilversum

Cijfers voor postcodegebied 1221

Huishoudens met één kind
8%
Huishoudens met meerdere kinderen
23%
Huishoudens met kinderen
31%

Woningen in Hilversum

Cijfers voor postcodegebied 1221

Woningen voor 1945
66%
Woningen tussen 1945 en 1965
1%
Woningen tussen 1965 en 1975
1%
Woningen tussen 1975 en 1985
5%
Woningen tussen 1985 en 1995
6%

Woningen in Hilversum

Cijfers voor postcodegebied 1221

Woningen tussen 1995 en 2005
6%
Woningen tussen 2005 en 2015
7%
Woningen na 2015
8%
Huurwoningen
50%
Koopwoningen
50%

Overige in Hilversum

Cijfers voor postcodegebied 1221

Gemiddelde WOZ waarde
€ 247.000,-
Personen onder de 65 met uitkering
9%

Overige in Hilversum

Cijfers voor postcodegebied 1221

Adressen per km²
3919
Stedelijkheid (schaal 1 op 5)
100%
Postcode kaart 1221 Gemeente kaart hilversum

Korte feiten over Hilversum

Hilversum is een stad en gemeente in de Nederlandse provincie Noord-Holland en de grootste plaats in de landstreek het Gooi. Hilversum huisvest veel landelijke omroepbedrijven en wordt ook wel aangeduid als de 'mediastad'. Met 'Hilversum' worden ook wel de omroepactiviteiten bedoeld.

Indien u vragen heeft of u wilt een bezichtiging inplannen, dan kunt u gebruik maken van het formulier hiernaast. Er zal daarna op korte termijn contact met u worden opgenomen.

Contact opnemen

Contactgegevens

Dutch Brokers Makelaardij

Uw vertrouwde partner in de woningmarkt. Dutch Brokers en Expat4Expat biedt een uitgebreide dienstverlening met ruim 15 jaar ervaring in het kopen, financieren en verkopen van woningen. Onze uitzonderlijke reputatie binnen de expatmarkt hebben we te danken aan de intensieve begeleiding die we onze klanten al meer dan 15 jaar bieden.

Onze diensten

Aankoopbegeleiding

Wij begeleiden u bij het vinden van uw droomhuis, onderhandelen voor de beste voorwaarden en zorgen voor een soepele afronding van de aankoop.

Verkoopbegeleiding

Ons team ondersteunt u bij de strategische verkoop van uw woning, van het vaststellen van de optimale prijs tot aan het sluiten van de deal en de definitieve overdracht.

Financiering

Onze financiële experts helpen u bij het vinden van de meest passende financieringsopties, volledig afgestemd op uw persoonlijke situatie.

Nazorg

Ook na de transactie staan wij voor u klaar met advies en ondersteuning, zodat u met een gerust hart kunt genieten van uw nieuwe woning of verkoop.

Dutch Brokers Makelaardij

Lijsterweg 38, Hilversum

€ 650.000 k.k. - Verkocht

Helaas, deze woning is verkocht!

Net te laat, deze woning is al verkocht. Laat een zoekopdracht bij ons achter zodat wij u direct kunnen helpen wanneer er nieuw aanbod beschikbaar komt.